 
			Centro storico Voltrese.
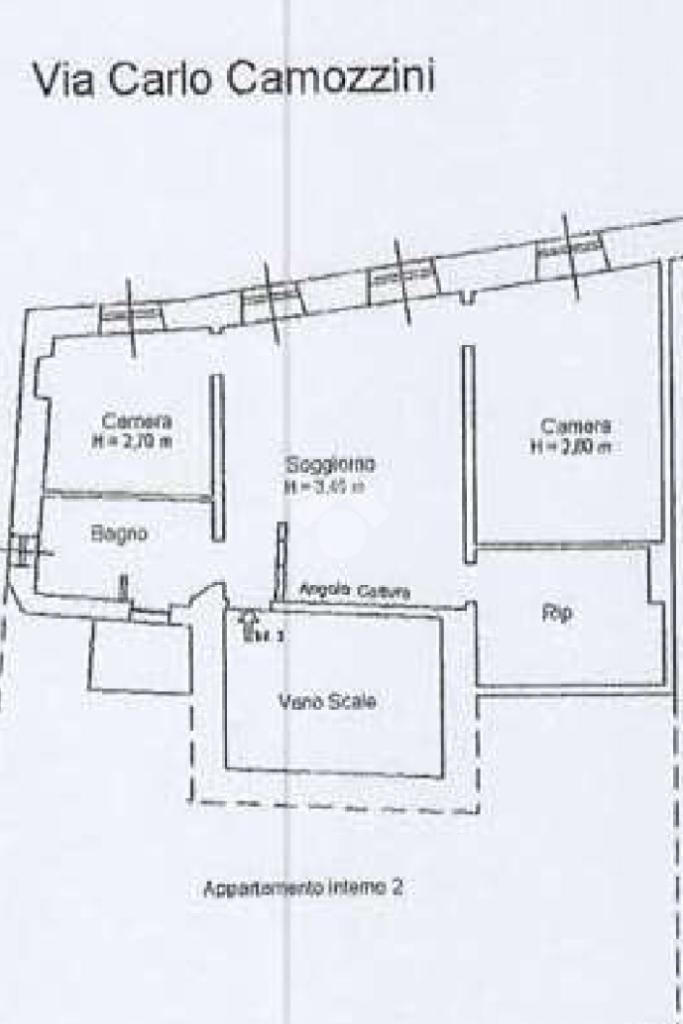
In Via Cerusa proponiamo splendido appartamento posto al secondo piano in palazzina adiacenze Piazza Santa Limbania, recentemente ristrutturato e composto da ampio ingresso in soggiorno con due finestre aperto sull'angolo cottura, camera matrimoniale molto grande, ulteriore camera da letto, stanza armadi e bagno con doccia, finestra e balconcino interno.
Finiture di pregio.
Riscaldamento autonomo.
Aria condizionata.
Porta blindata.
Persiane e finestre in ottimo stato.
Da vedere.
Prezzo ridotto di €1 (3%%)
Ti interessa visionare l'immobile?